Beschreibung
                        Blubenaco Immobiliare bietet in Montemaderno ein wunderschönes Attico im Bau in einem exklusiven Komplex von nur fünf Einheiten zum Verkauf an, mit herrlichem Seeblick und umgeben vom Grün und der Ruhe der toskanischen Hügel. Dieser Komplex ist vollständig mit hochwertigen Materialien gebaut und liegt in der Nähe Fertigstellung.
	 
                
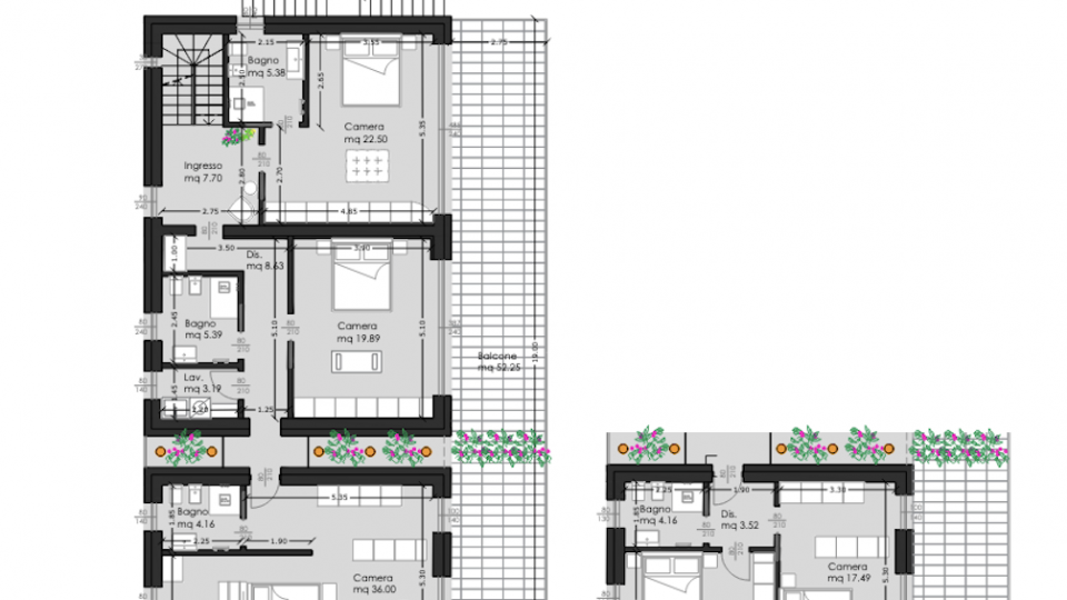
	Das vollständig im Obergeschoss angeordnete Dachgeschoss setzt sich wie folgt zusammen:
	großes Wohnzimmer mit Küche
	zwei Doppelzimmer
	zwei Badezimmer
	ein als Garderobe genutzter Raum
	Balkon und Loggia von den Schlafzimmern aus begehbar
	Das Anwesen umfasst einen Gemeinschaftspool und eine private Garage.
	Das Anwesen wird auch mit Fußbodenheizung, Hausautomation, hochwertigen Fenstern und externen Glas- und Holzabdeckungen vervollständigt.
	Wir möchten darauf hinweisen, dass der Preis keine Möbel beinhaltet.
                    Allgemeine Informationen
Art
Dreizimmerwohnung
Gesamtfläche
126mq
Räume
5
Schlafzimmer
2
Bäder
3
Status
Neubau
Details
- Code
- A393-TA1A
- Kategorie
- Wohnimmobilien
- Art
- Dreizimmerwohnung
- Baujahr
- 2022
- Preis
- € 2.500.000
Grundrisse
Lage
Toscolano-Maderno (BS)
Energieverbrauch
A+
                                                        A
                                                        B
                                                        C
                                                        D
                                                        E
                                                        F
                                                        G
                                                    Energieklasse A+ (D.lgs. 192 del 19/08/05)
 
                                             
                                             
                                             
                                             
                                             
                                             
                                             
                                             
                                             
                                             
                                             
                                             
                             
                             
                             
                             
                             
                             
                             
                             
                             
                             
                             
                             
                                                                            